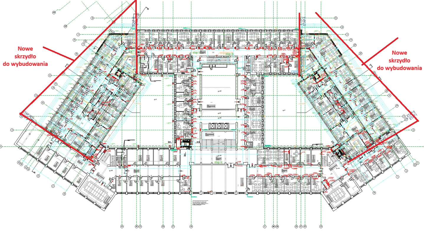
Trwa obecnie postępowanie przetargowe na wybór wykonawcy rozbudowy siedziby Urzędu Marszałkowskiego w Toruniu. Oprócz prac remontowych planuje się budowę dwóch nowych skrzydeł o powierzchni prawie 9 tys. m2, w którym powstać ma 158 pomieszczeń – to niewiele mniejsza powierzchnia od bydgoskich Młynów Rothera. Władze województwa są gotowe na tę rozbudowę włożyć znacznie większe środki niż w rozbudowę Opery Nova.
Rozbudowa obejmuje dobudowanie nowych skrzydeł z pomieszczeniami o funkcji biurowej, zadaszenie i zagospodarowanie patia południowego i budowę parkingu podziemnego pod patiami i skrzydłami, z przejazdami między jego poszczególnymi częściami umożliwiającymi komunikację po całym parkingu – czytamy w opisie. O dokładnych kosztach będziemy mogli mówić dopiero w drugiej połowie lutego , gdy planowane jest otwarcie ofert przetargowych. Wtedy dowiemy się, ile to kosztuje rynkowo. W dokumentach finansowych województwa do 2028 roku zabezpieczono jednak prawie 170 mln zł. Prace mogą ruszyć jeszcze w tym roku.

Zamówienie obejmuje także budowę podziemnego parkingu na 211 samochodów, chociaż Urząd Marszałkowski sąsiaduje z Jordankami, które również posiadają spory parking.







